Project 1 Facilities 2 Floor Plan 3 Gallery 4 Specification 5 Site Plan 6 Location 7 Contact Us 8
Facilities Facilities

Ciptakan suasana yang ceria dalam kehidupan keluarga Anda dengan fasilitas yang lengkap di Trevista Bekasi.

One Gate System

Sistem keamanan perumahan yang tingkat keamanannya lebih tinggi karena akses masuk kedalam perumahan hanya satu jalan (keluar dan masuk menjadi satu).

Club House

Club House Trevista Bekasi dilengkapi dengan kolam renang dan lapangan futsal. Menjadi sarana berinteraksi antar penghuni sambil menikmati kegiatan olah raga untuk menjaga kebugaran dan kualitas hidup yang sehat

Musholla

Buat aktifitas beribadahmu semakin nyaman dengan musholla di dalam cluster

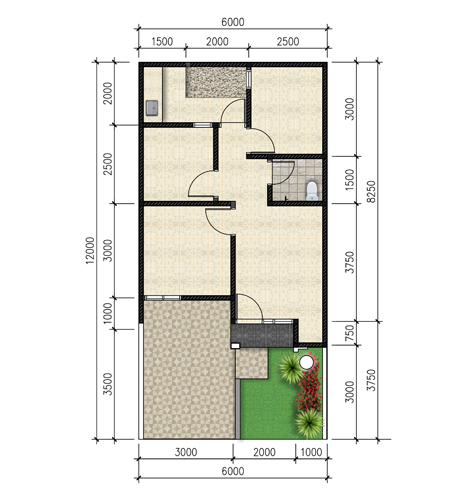
Floor Plan
Room Detail

Luas Bangunan

50 m2

Luas Tanah

72 m2

Kamar Tidur

3

Kamar Mandi

1

Carport

1

Room Detail

Luas Bangunan

60 m2

Luas Tanah

84 m2

Kamar Tidur

3

Kamar Mandi

1

Carport

1

Room Detail

Luas Bangunan

45 m2

Luas Tanah

72 m2

Kamar Tidur

2

Kamar Mandi

1

Carport

1

Specification
Specification
Pondasi

Tapak beton

Dinding

Bata plester aci finishing cat setara Dulux

Atap

Rangka atap baja ringan & Genteng keramik

Sanitari

PDAM, kitchen sink & Closet duduk setara TOTO

Kelistrikan

Daya 1300 watt

Plafond

Papan Gypsum finishing cat setara Dulux

Sanitari

PDAM, kitchen sink & Closet duduk setara TOTO

Atap

Rangka atap baja ringan & Genteng keramik

Site Plan
Location
Location

Hunian strategis dekat dengan pusat kota

Trevista Bekasi terletak di wilayah strategis di Bekasi, dekat dengan Summarecon Bekasi. Hanya 30 menit dari Stasiun Bekasi.

Sarana Transportasi

Stasiun Bekasi, Terminal Bekasi, TOL Bekasi Barat

Pusat Perbelanjaan

Summarecon Mall Bekasi, Mall Metropolitan, Bekasi Cyber Park

Sarana Pendidikan

Al Azhar Bekasi, BINUS University Bekasi

Sarana Kesehatan

RS Anna Medika, RS Tiara Bekasi

Address

Jl. Tre Vista Residence, Kebalen, Kec. Babelan, Bekasi, Jawa Barat 17610

Contact Us
Contact Us
(+ 62) 21 - 2277 4069 /