Project 1 Facilities 2 Floor Plan 3 Gallery 4 Specification 5 Site Plan 6 Location 7 Contact Us 8
Facilities Facilities

Nikmati fasilitas premium yang kami persembahkan hanya untuk kenyamanan dan keamanan keluarga anda

One Gate System

Sistem keamanan perumahan yang tingkat keamanannya lebih tinggi karena akses masuk kedalam perumahan hanya satu jalan (keluar dan masuk menjadi satu).

Club House

Club House Trevista Ciputat dilengkapi dengan kolam renang dan view taman yang indah. Menjadi sarana berinteraksi antar penghuni sambil menikmati kegiatan olah raga untuk menjaga kebugaran dan kualitas hidup yang sehat

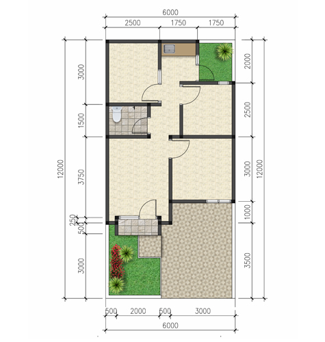
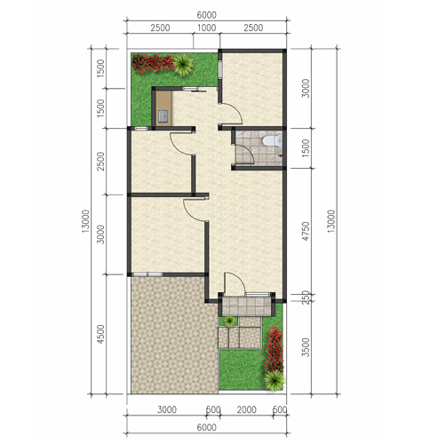
Floor Plan
Room Detail

Luas Bangunan

55 m2

Luas Tanah

91 m2

Kamar Tidur

3

Kamar Mandi

1

Carport

1

Room Detail

Luas Bangunan

52 m2

Luas Tanah

78 m2

Kamar Tidur

3

Kamar Mandi

1

Carport

1

Room Detail

Luas Bangunan

49 m2

Luas Tanah

72 m2

Kamar Tidur

3

Kamar Mandi

1

Carport

1

Site Plan
Location
Location

Temukan hunian yang strategis di pinggir pusat kota

Trevista Ciputat berlokasi di wilayah yang strategis, dekat dengan sarana transportasi dan memiliki banyak pilihan lokasi pusat perbelanjaan seperti Tip Top Ciputat dan Superindo Pamulang.

Sarana Transportasi

Bandara Pondok Cabe, Tol Pondok Pinang

Sarana Kesehatan

RSUD Tangsel, RS Sari Asih

Sarana Pendidikan

Universitas Terbuka, Universitas Pamulang

Pusat Perbelanjaan

Tip Top Ciputat, Superindo Pamulang

Address

Trevista Residence, Jl. Cipunegara Raya No.99, Cipayung, Kec. Ciputat, Kota Tangerang Selatan, Banten 15411

Contact Us
Contact Us
(+ 62) 21 - 2277 4069 /